Web Analytics
Mobile Office Trailer 8ft X 32ft for rent

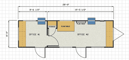
Mobile Office Trailer 8ft X 32ft

Mobile Office Trailer Rental 8’ wide x 32’ long double office unit (including tongue)
32 ft Mobile Office trailer

Description:

Standard furniture package includes (1) large plan table; (1) wall-mounted print rack; (2) full-width built-in desks in each-office with two-drawer file cabinets and knee wells for two work stations.

This rugged field office can be custom ordered to meet your specific job requirements. Popular options include custom interior configurations, exterior siding styles and trim colors, and plumbing such as half-baths, wash basins, and showers.

 

  • FRAME: R-7 Unfaced Insulation. 2×4 Floor Joists/ 5/S” Plywood Decking T&G 12″x12″xl/S” Vinyl Composition Tile
  • WALLS: 2×3@ 16″ OIC Exterior Studs T-{)-High 8 ft. Rear Office, 19′-6″ ft. Front (Main) Area R-7 Unfaced Insulation 5/32″ Pre-finished Wood Grain Paneling .019″ Aluminum Siding
  • ROOF / CEILING: Tapered 2×4 Rafter@ 16″ OIC, 30 psI LL R-II Unfaced Insulation 1/2-Prefinished Gypsum Ceiling 30 Gauge Galvanized Steel Roofing
  • EXTERIOR DOOR: 36″x80″ Aluminum MIH Type 14″x14″ Ute/Keyed Knob Set/Stay Chain
  • WINDOWS: 46″or 30″ x 27″ Horizontal Slider. Mill Frame
  • ELECTRICAL: 120/240 Volt, 1 Phase Panel #14 AWG Romex I Fluorescent Strip Ceiling Lights
  • PLUMBING: Optional
  • HEATING & AIR CONDITIONING: Baseboard Heat and thru-wall Air Conditioning
  • SPECIALITIES: Standard Furniture Package
  • BUILDING SIZE: 832 Model (8·-0· x 28′..0″ Box)